IN VENDITA

110.000 €

PUNTI CHIAVE:
  • 1 Bagni
  • 70 m2
POSIZIONE:

Via Damiano Chiesa , San Giovanni Lupatoto

imperdibile !!!
Descrizione

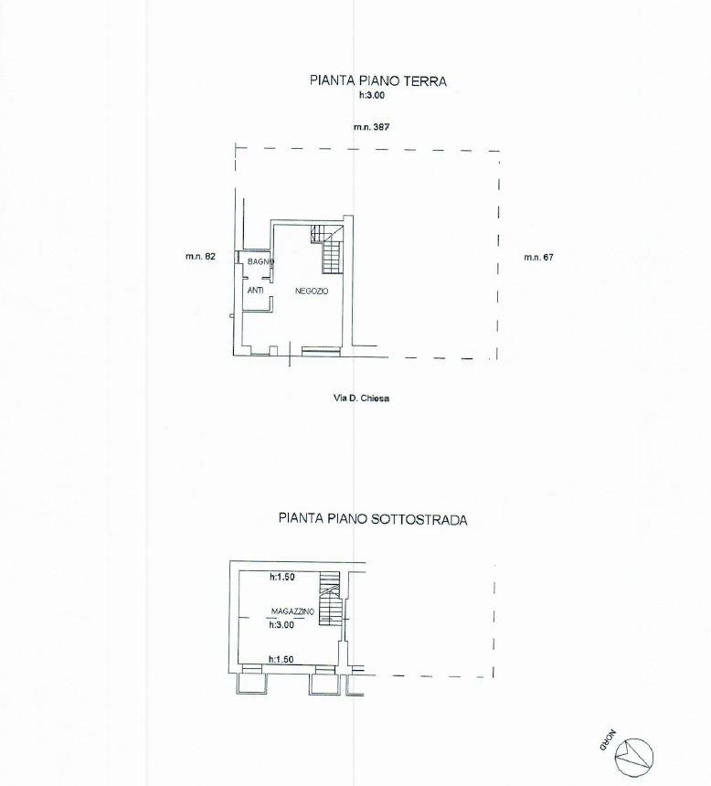
San Giovanni Lupatoto, SOLO MURA, NO ATTIVITA', ottima opportunità come investimento , attualmente locato fino al 2029 con rendita garantita del 6% lordo. Attualmente si presta ad attività commerciale di parrucchiera su strada di alto passaggio veicolare. L'immobile, per un totale di 70 mq, è composto da : ingresso indipendente vetrinato fronte strada e locale open space con bagno ed antibagno; una scala interna collega l'interrato adibito ad uno magazzino. Completamente ristrutturato nel 2017, impianto di riscaldamento e raffrescamento con split, scaldabagno a gas metano per la produzione di acqua calda sanitaria, pavimenti in gres porcellanato effetto legno, soffitto travato, finiture pareti con pietra a vista e serramenti esterni in metallo vetro camera multistrato antisfondamento.
Chiama subito per maggiori informazioni e/o per fissare un appuntamento allo 0458240082.

Panoramica
  • Riferimento: BNP110
  • Camere: 0 Camere
  • Bagni: 1 Bagni
  • Superficie: 70 m2
Dettagli
ID Interno:
BNP110
Prezzo:
€ 110.000
Bagni:
1
Superficie:
70 m2
Tipo di Proprietà:
Locale commerciale
Stato:
Ristrutturato
Riscaldamento:
Autonomo
Ubicazione
(Ubicazione approsimativa)
Calcola il Mutuo
Rata Mensile: € 531,45
Il valore sopra riportato ha solo scopo indicativo ed è variabile in base al singolo Ente finanziatore ed al tasso indicato.
Contatta l'agenzia
avatar
Ital Home Verona
0458240082
verona@ital-home.it
Perchè Scegliere Noi?
  • Acquisti in sicurezza
  • Miglior Prezzo Garantito
  • Consulenza personalizzata
  • Ascolto, dedizione, esperienza
Valuta la Tua Casa

Scopri il vero valore della tua casa o di quella che vuoi acquistare!

Inizia Valutazione
image
In base alla tua ricerca

Potrebbe interessarti

Appartamento a Verona
  • In Vendita
Appartamento

Verona

  • 5
  • 2
  • 150m2
  • Singolo
avt
APBM480
€ 480.000
Appartamento a Verona
  • In Affitto
Appartamento

Verona

  • 3
  • 1
  • 75m2
avt
AFFITT850
€ 850

/mese

Appartamento a Verona
  • In Vendita
Appartamento

Verona

  • 4
  • 2
  • 90m2
avt
PBV340
€ 340.000