VENDUTO

IN VENDITA

125.000 €

PUNTI CHIAVE:
  • 4 Camere
  • 2 Bagni
  • 130 m2
POSIZIONE:

Via Pasqualino Benedetti , Verona

super affare come 1a casa o come investimento !!!
Descrizione

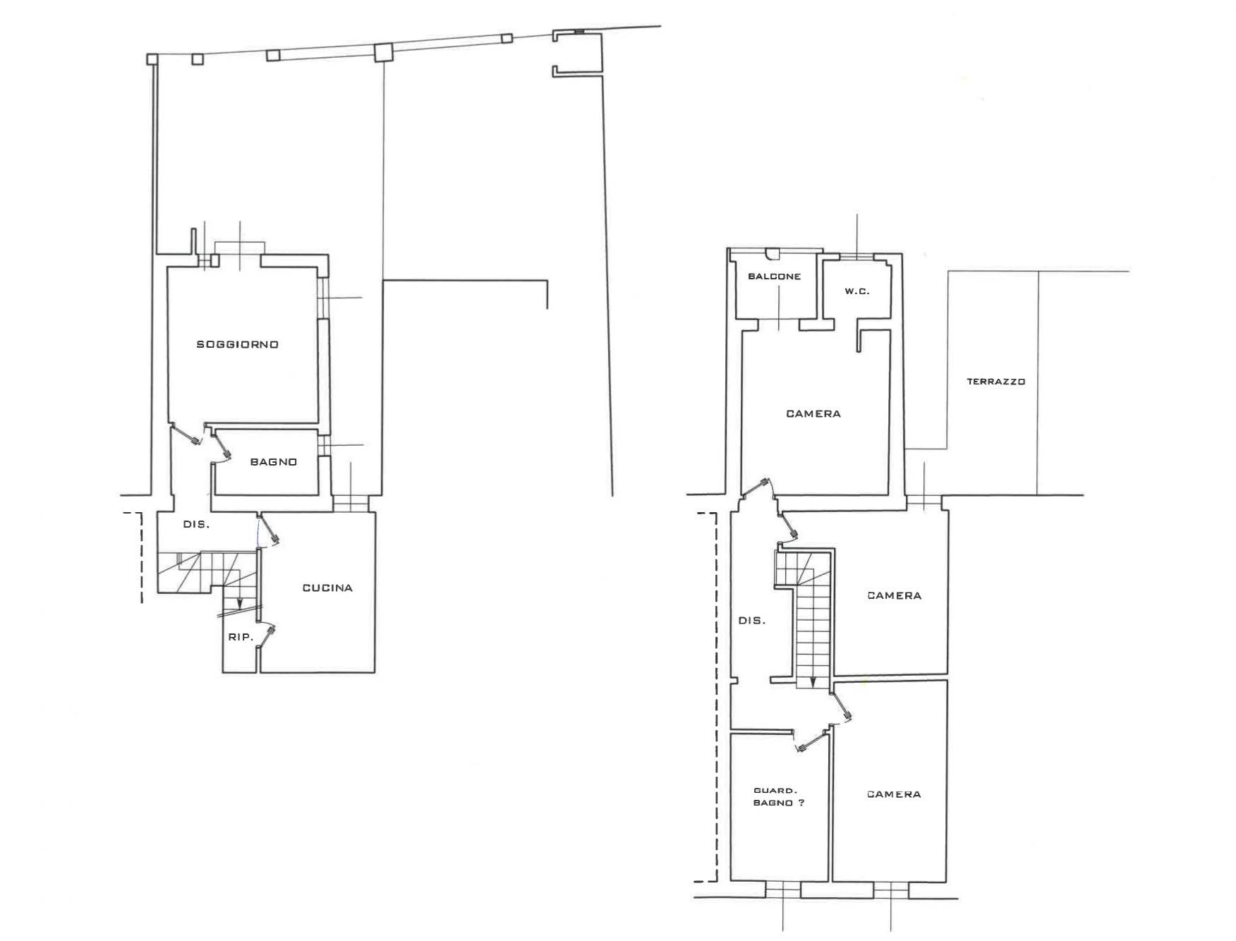
Borgo Roma, centralissimo, comodo a tuti i servizi, a 2 passi dall'ospedale e a 2 km dal centro città, proponiamo, in piccolo contesto residenziale, pentalocale disposto su 2 livelli con giardino ed ingresso indipendente.
La soluzione è così composta : al piano terra, con accesso dal giardino di proprietà, troviamo l'ingresso su zona living, cucina abitabile, bagno finestrato e ripostiglio; un disimpegno notte con scala interna collega il 1° piano dove vi sono 4 camere, il 2° bagno finestrato, un terrazzo di 15 mq ed un balcone.
L'immobile necessita di creare la scala interna che collega il piano terra al 1° piano (come da rappresentazione grafica e di studio di fattibilità) e di una sistemazione generale.
ZERO SPESE CONDOMINIALI!!
L'offerta è rivolta solo a chi è già in possesso di liquidità immediata.
Chiama subito per maggiori informazioni e/o per fissare un appuntamento allo 0458240082.

Panoramica
  • Riferimento: PB150
  • Camere: 4 Camere
  • Bagni: 2 Bagni
  • Superficie: 130 m2
Dettagli
ID Interno:
PB150
Camere:
4
Prezzo:
€ 125.000
Bagni:
2
Superficie:
130 m2
Tipo di Proprietà:
Appartamento
Stato:
Da ripulire
Riscaldamento:
Autonomo
Classe:
N/A - Non Applicabile
Caratteristiche
  • Giardino Privato
Ubicazione
(Ubicazione approsimativa)
Calcola il Mutuo
Rata Mensile: € 603,92
Il valore sopra riportato ha solo scopo indicativo ed è variabile in base al singolo Ente finanziatore ed al tasso indicato.
Contatta l'agenzia
avatar
Ital Home Verona
0458240082
verona@ital-home.it
Perchè Scegliere Noi?
  • Acquisti in sicurezza
  • Miglior Prezzo Garantito
  • Consulenza personalizzata
  • Ascolto, dedizione, esperienza
Valuta la Tua Casa

Scopri il vero valore della tua casa o di quella che vuoi acquistare!

Inizia Valutazione
image
In base alla tua ricerca

Potrebbe interessarti

Appartamento a Verona
  • In Vendita
Appartamento

Verona

  • 2
  • 1
  • 65m2
avt
GBV255
€ 255.000
Villa a Costermano sul Garda
  • In Vendita
Villa

Costermano sul Garda

  • 8
  • 2
  • 110m2
  • Singolo
avt
GVC330
€ 330.000
Appartamento a Verona
  • In Vendita
Appartamento

Verona

  • 3
  • 1
  • 100m2
avt
GTV320
€ 290.000