VENDUTO

IN VENDITA

140.000 €

PUNTI CHIAVE:
  • 2 Camere
  • 1 Bagni
  • 145 m2
POSIZIONE:

Strada Comunale Pol Di Pastrengo , Verona

stupendo terra-cielo immerso nel verde!!
Descrizione

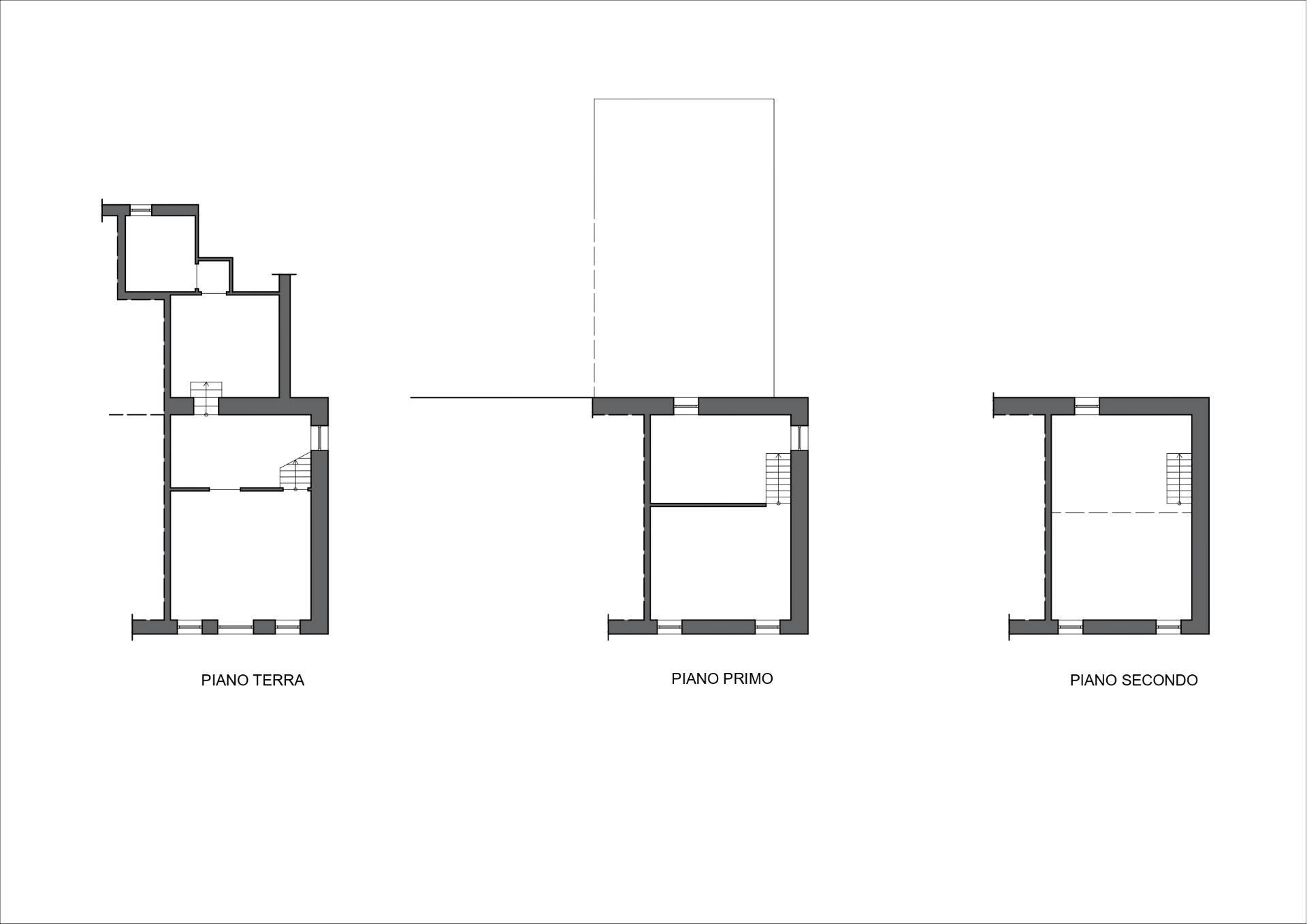
Pastrengo, sulla strada Pol che collega Bussolengo a Pastrengo, nel cuore della Valpolicella, in contesto signorile ed immerso nel verde, proponiamo terra-cielo angolare di 145 mq, parzialmente abitabile. L'immobile è così composto: la porta d'ingresso si apre comodamente sul salotto, dotato di un magnifico camino d'epoca, accanto vi è una saletta da pranzo, collegata da due scalini alla spaziosa cucina abitabile, caratterizzata da un bellissimo camino ad angolo; a seguire troviamo un bagno finestrato con box doccia. Dal soggiorno tramite una scala accediamo alla zona notte, con una camera da letto matrimoniale ed una stanza che può essere adibita a seconda camera da letto matrimoniale o suddivisa per creare un secondo bagno ed un ripostiglio. Al secondo piano troviamo un mansardato open space, versatile grazie alle generose metrature. Possibilità di annettere all'immobile un terreno adiacente di 1300mq coltivato a vigneto, ottimo creare per un ingresso separato con posti auto privati Tutte le stanze godono di una vista incredibile sulle campagne circostanti, si possono ammirare il fiume Adige, il monte Baldo ed i caratteristici paesi di Pescantina e Bussolengo. Completano la proprietà una bellissima terrazza di 60 mq, ed un giardino di 100 mq, perfetti per godersi il panorama da cui si è circondati!!! Un'occasione imperdibile per gli amanti della tranquillità e della natura!!!
Chiama subito per maggiori informazioni e/o per fissare un appuntamento allo 0458240082.

Panoramica
  • Riferimento: ATP140
  • Camere: 2 Camere
  • Bagni: 1 Bagni
  • Superficie: 145 m2
  • Del: 1950
Dettagli
ID Interno:
ATP140
Camere:
2
Prezzo:
€ 140.000
Bagni:
1
Superficie:
145 m2
Costruzione:
1950
Tipo di Proprietà:
Terracielo/Terratetto
Stato:
Discreto
Riscaldamento:
Autonomo
Classe:
ND
Caratteristiche
  • Giardino Privato
  • Esposizione: NORD-EST-OVEST
Ubicazione
(Ubicazione approsimativa)
Calcola il Mutuo
Rata Mensile: € 676,40
Il valore sopra riportato ha solo scopo indicativo ed è variabile in base al singolo Ente finanziatore ed al tasso indicato.
Contatta l'agenzia
avatar
Ital Home Verona
0458240082
verona@ital-home.it
Perchè Scegliere Noi?
  • Acquisti in sicurezza
  • Miglior Prezzo Garantito
  • Consulenza personalizzata
  • Ascolto, dedizione, esperienza
Valuta la Tua Casa

Scopri il vero valore della tua casa o di quella che vuoi acquistare!

Inizia Valutazione
image
In base alla tua ricerca

Potrebbe interessarti

Appartamento a Verona
  • In Affitto
Appartamento

Verona

  • 2
  • 1
  • 60m2
avt
AFF800
€ 770

/mese

Villetta a schiera a Bussolengo
  • In Vendita
Villetta a schiera

Bussolengo

  • 3
  • 2
  • 80m2
avt
BLB115R
€ 87.000
Casa singola a San Giovanni Lupatoto
  • In Vendita
Casa singola

San Giovanni Lupatoto

  • 4
  • 3
  • 130m2
avt
CCSG340
€ 340.000